Ventilationskrav för kyl och frys

Problem

  • Erforderligt ventilationsutrymme i kylutrustning.
  • Varför är det nödvändigt att tillhandahålla ventilationsutrymmen för kyl/frys?
  • Kyl/frysen fungerar inte som den ska.
  • Kyl/fryskompressorn är fortfarande igång och kan fortfarande inte hålla rätt temperatur.

Gäller

  • Kyl/frys
  • Kylskåp
  • Frysar

Lösning

Var placerar man kyl-frysen?

Optimal drift av din kyl-frys är endast möjlig om alla individuella installationskrav är uppfyllda. Nedan hittar du en lista med universella monteringstips:

  1. Installera inte din kyl-frys nära en värmekälla (t.ex. ugn, spis, radiator, gasspis eller spis) eller i direkt solljus .
  2. Installera enheten i ett torrt, välventilerat rum .
  3. Kyl-frysen bör placeras på ett avstånd av minst 50 cm från spisar , gasspisar och kokplattor och minst 5 cm från en ugn .
  4. Se till att kyl-frysen inte utsätts för fukt eller regn .
  5. Jämför kyl-frysen för säker användning. Justerbara ben används för att placera enheten horisontellt.
  6. Innan du använder kyl-frysen, torka av alla hyllor och lådor med en trasa indränkt i varmt vatten med bakpulver (en tesked). Efter rengöring, skölj dem med varmt vatten och torka dem.
  7. Kylskåp är konstruerade för att användas vid omgivningstemperaturer från 10°C till 43°C.

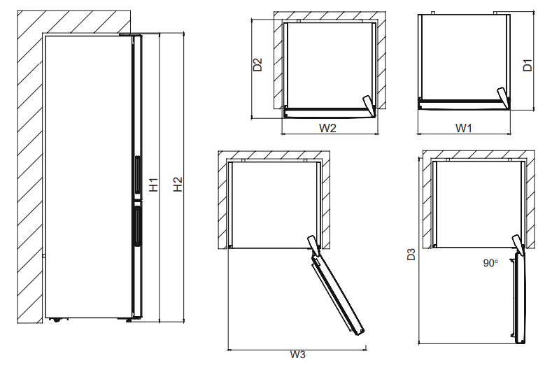
Krav på ventilation av kyl-frys

Kyl-frysen producerar värme under drift, som strömmar ut genom enhetens bakre vägg. Att upprätthålla lämpliga ventilationsöppningar är nödvändigt för korrekt och optimal drift. Kyl-frysen kan inte placeras direkt mot vägg, möbel eller tak - avståndet måste hållas.

På grund av dess fysiska egenskaper rör sig varm luft som kommer ut från kyl-frysskåpets baksida uppåt. Därför är det nödvändigt att tillhandahålla tillräckligt med utrymme ovanför enheten för att tillåta fritt luftutbyte.

Ventilationskraven varierar beroende på typ av kyl-frys.

  • Inbyggda kyl-frysar kräver förberedelse av en lämplig ventilationskanal i möbeln ( se installationsanvisningarna för kyl-frysen och kapitlet "Installation" i användarmanualen) .


  • Fristående kyl-frysar kräver ett visst avstånd från väggen som enhetens baksida placeras på och taket (se kapitlet "Installation" i kyl-frysens bruksanvisning)

VIKTIG! Underlåtenhet att säkerställa korrekt luftcirkulation och ventilation kan vara en direkt orsak till fel. Defekter som uppstår på grund av felaktig installation täcks inte av garantin. 

Felaktig ventilation av kyl-frys - möjliga symtom

En felaktig ventilationskanal kan göra att enheten överhettas och orsaka oregelbunden funktion av komponenter. Symtom som kan orsakas av felaktig installation:

  • bullrig drift av enheten;
  • kontinuerlig drift av kompressorn, utan stopp;
  • problem med att upprätthålla temperaturen inuti kylen eller frysdelen, upprepat högtemperaturlarm;
  • överdriven frosting eller fuktansamling inuti kylen eller frysdelen.


Kyl-frysskåpets funktion påverkas av den omgivande temperaturen och luftfuktigheten. Ju varmare det är, desto allvarligare är symtomen på bristfällig konstruktion, dvs symtomen blir mer påtagliga.

Kom ihåg!

Utöver ventilationskanalerna har även regelbunden rengöring och omfattande underhåll en betydande inverkan på kyl-frysskåpets drift. Kontrollera avsnittet "Underhåll och rengöring" i enhetens användarmanual.

Dedikerade rengöringsmedel och tillbehör finns

i vår webbutik.

Var den här artikeln till hjälp?

Reservdelar & tillbehör

Beställ originalreservdelar och tillbehör till din produkt från Electrolux och få dem levererade med post snabbt och billigt.

Till webbshop

Hitta din produktmanual

Lös problem och sök upp instruktioner eller annan dokumentation om din produkt.

Hitta manual

Registrera dina produkter

Registrera dina produkter med MyElectrolux och hitta allt du behöver på ett och samma ställe.

Registrera produkt